Котел без дымососа 170 КВт в Владивостоке
характеристики
товара
поставки
оборудование
подключения
и гарантии
котла
Технические характеристики котла без дымососа 170 кВт
Работа котла без дымососа имеет неоспоримое преимущество - это исключение затрат на монтаж дымососа и затраты на электроэнергию в течение отопительного сезона. Для того чтобы обеспечить одновременно и высокий КПД котла и возможность работы котел без дымососа, имеет уникальную, запатентованную конструкцию, обеспечивающую:
- максимально высокий КПД котельной установки за счет развитой поверхности нагрева, до 85 %;
- легкий выход на режим в переходный период при плюсовой температуре окружающего воздуха;
- исключается конденсат в хвостовых поверхностях нагрева котла;
- достаточная высота дымовой трубы всего 18 м;
- максимальную надежность котла.
Конструкция твердотопливного котла КВ 170 КВт, работающего без дымососа
Водогрейные твердотопливные котлы КВ самотяге изготавливают из стальных труб. Котлы КВ имеют топочную часть, где происходит процесс горения топлива и конвективную часть, где происходит передача тепловой энергии нагреваемой воде и снижение температуры уходящих газов до 180-200 °С. Горение твердого топлива происходит на слоевой топке. Снаружи трубная система имеет обшивку из стальных листов и теплоизоляции, установленных на каркасе. На крыше котла имеются люки для очистки конвективных поверхностей нагрева. Внизу котла располагаются опоры, зольный бункер и поворотный короб. Сбоку в верху топочной части котла устанавливается обводной газоход с шиберами, который присоединяется в газоход за котлом.
Сложность эксплуатации котла, работающего на самотяге, заключается в моменте его пуска, потому что тяга тем лучше устанавливается, чем больше разница температур наружного воздуха и горячих дымовых газов. При пуске котла в начале отопительного сезона, температура наружного воздуха еще плюсовая, горячие газы пускаются, через обводной газоход, установленный в котлах КВ, не имея на своем пути никакого сопротивления газы, свободно выходят из топки котла и двигаются по обводному газоходу, разогревают дымовую трубу. После установления стабильного режима горения слоя топлива, обводной газоход перекрывается, и газы двигаются уже через конвективные пакеты. Устанавливается стабильная тяга в газоходах и дымовой трубе, водогрейный котел без дымососа выходит на мощность, КПД максимально. Нет затрат на электроэнергию, нет потерь с уходящими газами, конструкция котла оптимальна.
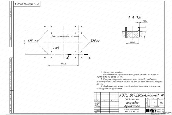
Котлы КВ на самотяге имеют максимальную монтажную готовность, не требуют изготовления фундаментов, опор и зольников, котел устанавливается на ровную поверхность и закрепляется анкерными болтами.
Гидравлическая система в котле без дымососа также обеспечивает максимальную надежность и эффективность работы котла. Котел работает по противоточной схеме, когда конвективная поверхность выступает в роли экономайзера, тем самым, обеспечивая повышение КПД котла еще на 5%. Скоростная вихревая гидравлическая схема движения теплоносителя, обеспечивает стабильную работу котла без водоподготовки, турбулизация потока теплоносителя в котле обеспечивает отсутствие застойных зон и безнакипность его работы.
Топка в котле без дымососа обеспечивает максимально возможную эффективность сжигания твердого топлива. Топка выполняется из водоохлаждаемых труб с вваренной охлаждаемой стальной полосой с многочисленными маленькими отверстиями для подачи воздуха, таким образом зеркало горения имеет большую и равномерно распределенную область подачи воздуха в слой топлива. Оптимальный режим горения, позволяет не только более эффективно сжигать подаваемое на решетку твердое топливо, но и устраняет зависимость эффективности сгорания топлива от его вида, и свойств по спекаемости, зольности и фракционности. Опытным путем было доказано, что одно только применение равномерного распределённой схемы подачи воздуха в слой позволяет снизить механический и химический недожог, и тем самым повысить КПД, связанное с активным горением и провалом на 3%. Простота и удобство в обслуживании, особенность устройства поверхности топки позволяют оперативно снимать слой топлива и шлака из топки в случае аварийной ситуации в котельной.
Технические характеристики котла
| Наименование | Котел без дымососа КВ-170 | |||
| Мощность водогрейного котла, МВт | 0,17 МВт (0,15 Гкал/ч) | |||
| Площадь отапливаемого помещения при высоте потолка 3 м, м² | 1500 | |||
| Температура воды, °C | 70-95 (95-115) | |||
| Давление рабочей среды, МПа (кгс/cм²) | 0,1-0,3 (1-3) | |||
| Топливо | Каменный уголь | Бурый уголь | ||
| Низшая теплота сгорания, ккал/ч | 5230 | 2720 | ||
| КПД котла, не менее, % | 80 | 74 | ||
| Расход топлива, кг/ч | 75 | 76 | ||
| Расход условного топлива, кг/ч | 27 | |||
| Температура уходящих газов, °C | Не более 200 | |||
| Расход рабочей среды, м³/ч | 6 | |||
| Гидравлическое сопротивление котла при Δt 25°C, МПа (кгс/cм²) | не более 0,05 (0,5) | |||
| Аэродинамическое сопротивление, Па (мм. вод. ст.) | Не более 80 | |||
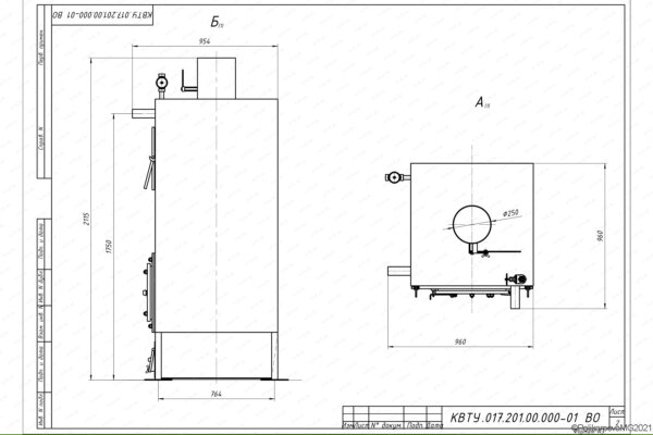
| Габаритные размеры котельного блока, не более | ||||
| Длина, мм | 950 | |||
| Ширина, мм | 1280 | |||
| Высота, мм | 2220 | |||
Обозначение котла в соответствии с ГОСТ 30735-2001 - Котел КВр-0,17 К, Котел КВр-0,17 КБ, КВ-0,17 КБ
Комплект поставки котла
Котел КВ 170 КВт, ручная топка, обводной газоход, запорные вентили, предохранительные клапаны, термометры, манометры, трехходовые краны, паспорт и инструкция по эксплуатации водогрейного котла КВ 170.
Для того, что бы купить котел без дымососа, мощностью 170 КВт вы можете сделать заявку в отдел сбыта по телефону 8-800-700-06-43, либо оформить заявку он-лайн.
Комплект поставки котла без дымососа 170 кВт
Цена водогрейного котла без дымососа 170 кВт включает в себя запорную арматуру и КИП в пределах котла, вентилятор поддува и предохранительные клапаны. Ниже приведена подробная информация.
Дополнительное оборудование котла без дымососа 170 кВт
Для эффективной и надежной работы котла без дымососа 170 кВт вам потребуется дополнительное оборудование - автоматика, дымосос, золоуловитель, насос сетевой и подпиточный, газоходы и переходники для газового тракта, дымовая труба. Мы предлагаем рассмотреть типовые варианты комплектации. В случае если у вас на объекте имеется насосное и тягодутьевое оборудование, мы можем проверить совместимость котла без дымососа 170 кВт нашего производства и вашего оборудования. Можем изготовить нестандартные узлы для выполнения быстрого монтажа котла - газоходы и узлы обвязки. Типовую схему монтажа котла вы можете посмотреть во вкладке схемы подключения.
Монтаж и схемы подключения котла без дымососа 170 кВт
Водогрейный стальной отопительный котел без дымососа 170 КВт, предназначен для получения горячей воды номинальной температурой на выходе из котла от 95 до 115 °С рабочим давлением до 0,3 (3,0) МПа (кгс/см), используемой в системах централизованного теплоснабжения на нужды отопления, горячего водоснабжения. Устанавливается в производственных, промышленных и отопительных котельных.
Монтаж и подключение котла без дымососа 170 кВт
Схема подключения котла без дымососа
Сертификаты и гарантии котла без дымососа 170 кВт
Водогрейный котел без дымососа 170 КВт имеет гарантийный срок 24 месяца. Срок работы при соблюдении правил монтажа и эксплуатации оборудования 10 лет.